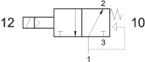
322 MEA technical data previous page It cannot be used as normally closed valve. AUTOCAD ver 14. DWG JPG ACIS - SAT STEP
technical data previous page It cannot be used as normally closed valve.
AUTOCAD ver 14. DWG
JPG
ACIS - SAT
STEP